Edificio Alhamar
Granada
Año
2022
Alhamar, plano de situación
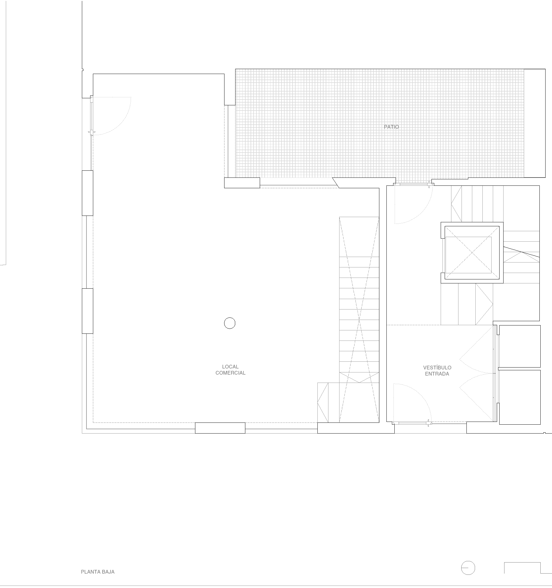
Alhamar planta baja

Al igual que el proyecto de P. Zuloaga, nuestra edificación se encuentra ubicada en el histórico Barrio Fígares de Granada, en concreto, en la calle Alhamar, un homenaje al reinado del primer sultán árabe de la ciudad y fundador de la dinastía nazarí, Muhammad ibn Al-Ahmar.

La nueva edificación, la cual ocupa la parcela de otra vivienda preexistente, cierra la manzana e hilvana las siluetas de las edificaciones anexas dando continuidad al entorno preexistente mediante una intervención sostenible.

Una vez más, los materiales de ayer, los de siempre, en los tiempos de hoy. El ladrillo y el mortero de cal, con la técnica de hoy. Una fachada pasante, ventilada y autoportante con la imagen de antes.

El edificio linda con varios inmuebles en sus medianeras con los que se alinea y se integra. El programa contiene la necesidad de un bajo comercial, tres viviendas y una normativa ejecutada metódicamente. Un patio en la planta baja nos relaciona el espacio residencial con el comercial y a su vez, con el espacio público de la calle, generando un juego de visuales en ambas direcciones.

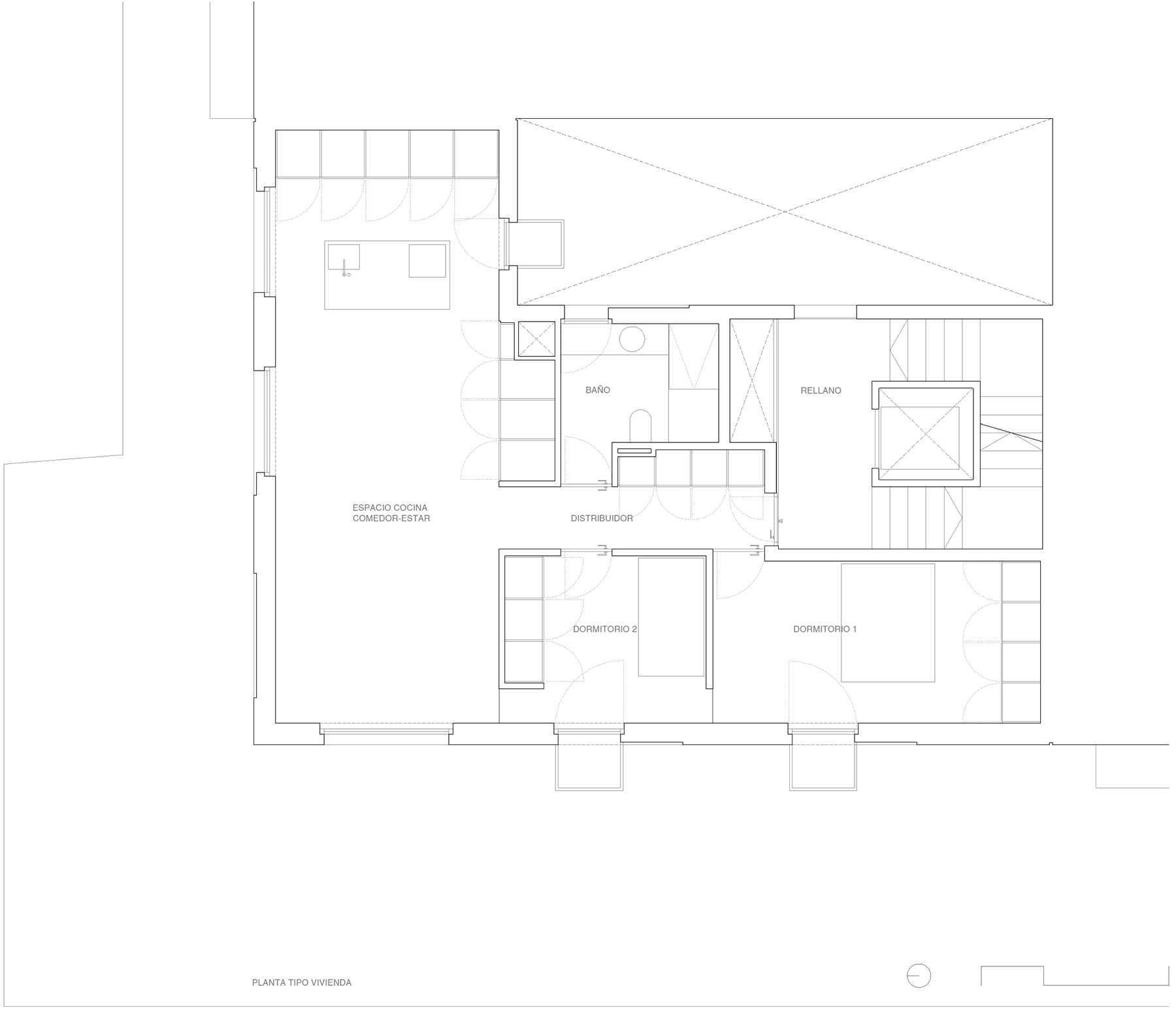
El esquema de vivienda queda definido a partir de dos ejes principales que organizan el espacio en una amplia zona de día y en un espacio de noche que contiene los dormitorios. En la intersección de estos ejes, articulando ambos espacios, queda ubicado el espacio de baño.

En definitiva, un volumen rotundo y silencioso de trazas sencillas perforado para la vida.

Alhamar planta vivienda
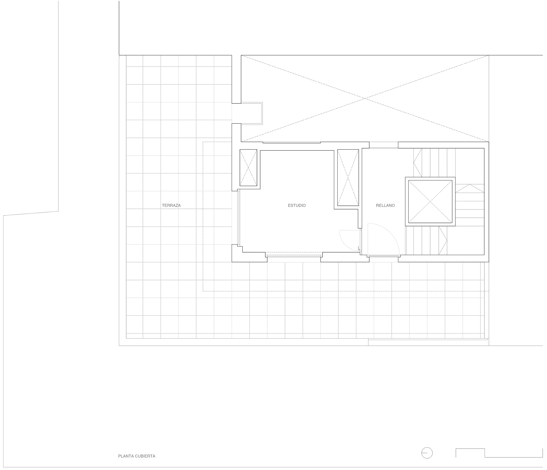
Alhamar planta cubierta
Alhamar sección transversal
Alhamar sección transversal
Alhamar alzado alhamar
Alhamar alzado mulhacen
Alhamar axonometria programa
Alhamar axonometria entorno